Enclave Croydon: Europe’s Tallest Modular Coliving Residence
Enclave Croydon sets a new benchmark for urban living as Europe’s tallest volumetric modular residential building, offering 815 apartments supported by 24,000 sq ft of amenities across six floors. Designed to redefine the coliving experience, each level has its own character and purpose, creating a sense of home at scale. Residents enjoy a double-height reception with green marble and brass detailing, a makers space, music room, co-working lounges, communal kitchens, spa and gym facilities, and a flagship rooftop level featuring a bar, screening room, sky library, and roof terrace with panoramic city views.
Enclave Croydon
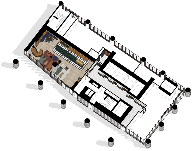
Enclave Croydon, is a new Coliving residence, and was on completion the tallest volumetric modular residential building in Europe. Aligning with its height, were the clients ambitions for the residence to be a leader in new types of living, delivering the next generation of communal living offering a new kind of luxury home. The amenity offering spans 24,000 sq ft across 6 floors providing an extensive offering for the 815 apartments.



Our intent was to create a sense of home even at such a scale. We characterised each of the floors to give them their own specific identity and purpose, helping to break down the scale to a much more human and individual experience.


On entry the green marble and brass reception desk with mid-century inspired wall panelling backdrop set a welcoming and intimate tone. This dauble height space then connects up to a mezzanine makers space and laundry, creating a layering of activity to subtly activate the reception areas above a waiting space. Across the core you are lead to the music room, an atmospherically dark and cosy space to relax or perform in.


Three further floors offer a reading room, co-working lounge and meeting rooms, and communal kitchens as well as spa, gym and studio spaces. The flagship top floor is envisaged as a daytime lounge and night time event space, incorporating a bar, screening room, games lounge, poker room, sky library and events spaces, which are connected up via a spiral stair to the the roof terrace and views back to the city.




The material palette is inspired by Croydon’s mid-century Architectural heritage, to create a strong mid-century feel to the spaces, each level has its own distinct identity but threaded together as a single narrative leading you through the building to create a series of homely and comfortable spaces that people want to inhabit.











