Battersea Sq Mews: Heritage-Led Mixed-Use Transformation
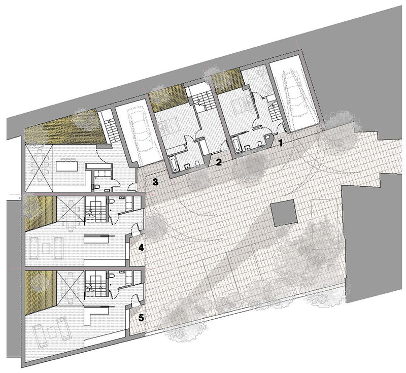
Battersea Sq Mews revitalises a historic West London site with five townhouses, apartments, and retail spaces centred around a public square. The design respects the scale and rhythm of surrounding heritage buildings while introducing a bold contemporary character, retaining key features such as Victorian trusses, rose windows, and original brickwork. Deep reveals, upper-floor terraces, and expansive glazed elevations create light-filled, well-proportioned homes, redefining the traditional mews typology. This sensitive yet transformative approach ensures the development remains a resilient and vibrant part of the Battersea community.
Battersea Sq Mews
The transformative mixed-use mews development features five townhouses, apartments, and retail spaces, gracing a public square in Battersea, southwest London. The core objective and architectural ethos of this project were centred on mirroring the proportion and scale of the existing heritage assets surrounding the development while infusing the terrace with a bold contemporary character.





We are retrofitting this building to really sustain a building that has been the centre of this west London community for over 100 years, hopefully making sure is stays at the centre of this community and is resilient to future change through its range of uses. We are keeping as much of the existing building fabric as possible, including the original Victorian Truss work being expressed throughout, and reinstating rose windows and restoring the original brickwork detailing. Celebrating the character of the existing building through careful and thoughtful interventions.



The contemporary terrace draws inspiration directly from the rhythmic vertical elements characteristic of Victorian architecture, utilizing deep reveals to break down the volume and brick massing of the mews, introducing small terraces to the upper floors.
Behind this facade, it translates into simple, clean spaces structured around expansive glazed elevations. Each area within the houses is meticulously designed to optimize natural daylight, offering unique spatial relations not commonly found in typical mews developments, especially on such a constrained urban site.
Through this approach, we redefine the traditional mews concept, infusing it with a transformative spirit that elevates both form and function.

